formenvielfalt
Gestaltung & Architektur
Iris Stieldorf
![]() Umgebung | ![]() Übersicht |
|---|---|
![]() Süd - West Perspektive | ![]() Ansicht Eingangsachse |
![]() SONNENSTAND am 21. Dezember um 12:00Vorsprünge in der Fassade regulieren den Sonneneinfall je nach Jahreszeit | ![]() SONNENSTAND am 21. Juni um 12:00die flache Wintersonne bringt viel Licht in das Gebäude, im Sommer schützt die Verschattung vor Überhitzung. |
![]() Terrasse EG BiotopDie Begrenzung zwischen Terasse und Garten bilden kleine BEete die von den jeweiligen Gruppen selbst bepflanzt und betreut werden. | ![]() Perspektive OstHolzstege verbinden die Terrasse mit |
![]() WeinbergDer Aushub erweitert den bereits bestehenden Hügel zum Rodelhügel u Weinberg | ![]() EG Gruppenraumoffener Grundriss mit vielen Spielzionen |
![]() OG Gruppenraumintegrierte Rettungsrutschen | ![]() Ansicht West |
![]() Ansicht Süd | ![]() Ansicht Ost |
![]() Ansicht Nord | ![]() Ansicht West |
![]() Grundriss Erdgeschoß | ![]() Grundriss Obergeschoß |
![]() Schnitt A-A |
So(l)LaRe
Planung eines 5gruppigen Kindergartens in Passivhausbauweise
Planungsbeginn 2010
Raumkonzept, Entwurf: DI Iris Stieldorf
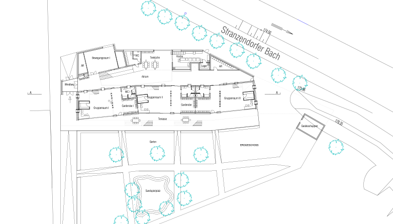
Die Gemeinde Hausleiten in Niederösterreich wollte im Zuge der Kindergartennovelle ihren zu kleinen und veralteten Kindergarten durch ein neues Gebäude ersetzen. Das gewählte Arreal liegt außerhalb des Ortskerns, ein zentral positionierter Parkplatz erschließt den südlich gelegenen Sportplatz den westlich gelegenen Tennisplatz und nördlich den zukünftigen Kindergarten. Der Bauplatz wird im Norden von einem kleinen Bach begrenzt.
Das Gebäude ist zweigeschossig konzipiert, drei Gruppenräume sind im Erdgeschoß, zwei im Obergeschoß untergebracht. Das Gebäude ist Nord- Süd ausgerichtet. Nebenräume sowie Küche und Bewegungsräume sind an der Nordseite angeordnet. Alle Gruppenräume sind nach Süden zum Garten orientiert. Eine teilweise Drehung um 6 Grad Richtung Osten soll der primären Vormittagsnutzung hinsichtlich der Belichtung entgegen kommen und Bewegung in die Fassade bringen. Der mittlere, Ost-West verlaufende Bereich des Gebäudes wird von einer großzügigen, hallenartigen Gangfläche eingenommen, die als Erweiterung der Bewegungsflächen der Gruppenräume dient. Diese dehnt sich im Zentrum des Gebäudes zu einem Atrium aus, das als Gemeinschafts- und Veranstaltungsbereich für Feste und Elterntage zur Verfügung steht.
An diesen Bereich grenzt auch der transparent gestaltete Eingangsbereich zur Küche. Die Halle bietet viele abwechslungsreiche Zonen, eine Kuschelecke unter der Stiege, das Atrium, ein Schaufenster in die Großküche und eines in den Technikraum und an ihrem Ende, im Osten, den Ausblick auf die Ruhezone des Biotops. Da die Kinder aufgrund der Hygienevorschriften die Küche nicht betreten dürfen, soll über großzügige Einblicke die Möglichkeit gegeben werden, dem Entstehen der täglichen Mahlzeiten beizuwohnen und die damit verbundenen Abläufe verstehen zu lernen. An der Nordwand des Atriums bietet eine Küchenzeile, die auch als Teeküche dient, den Kindern die Möglichkeit, das Beobachtete gemeinsam mit den BetreuerInnen selbst zu erproben.
Die Trennwand zwischen den Gruppenräumen und dem Gangbereich ist durch viele quadratische Öffnungen „perforiert“, die in die nördlichen Bereiche der Gruppenräume Licht bringen, teilweise direkten Zugang bieten und Durchblick ermöglichen. Viele dieser Öffnungen sind mit Schaukästen ausgestattet, die die Arbeiten der Kinder zeigen, Ankündigungen enthalten oder auch Platz für kleine Aquarien und Terrarien bieten, oder im unteren Bereich auch als Kuschel- und Verstecknischen verwendet werden können.
Die Grundtemperierung des Gebäudes über die Fußbodenheizung kommt der Nutzung im Kindergartenbereich sehr entgegen, der prinzipiell geforderte warme Boden ist somit ständig gewährleistet. Die Gruppenräume haben an der Südseite raumhohe, öffenbare Verglasungen, die eine natürliche Belichtung der Räume gewährleisten, bestmögliche Verbindung mit dem Außenbereich herstellen und Flexibilität in der Nutzung schaffen.
Jeder Gruppenraum ist grundsätzlich rechteckig, wobei die Längsseite dem Garten zugewandt, nach Süden bzw. Süd-Ost orientiert ist und direkten Zugang zu Garten und Terrasse ermöglicht. Der mittlere Bereich der Gruppenräume ist offen und bietet Lauf- und schnelleren Gruppenspielen ausreichend Platz, die Schmalseite wird durch den Abstellraum in zwei Zonen gegliedert: eine an der Fensterfront zum Lesen, Zeichnen und für andere konzentrierte Beschäftigungen, die zweite an der Nordseite. Dort schafft ein Raummöbel eine Höhlensituation als Rückzugsbereich zum Ausruhen und eine Plattform, die kleineren Gruppen Raum bietet.
Die Trennwand zwischen Eingangsbereich (Schmutzschleuse) und Gruppenraum erfüllt mehrere Anforderungen. Sie ist ab einer Höhe von 1,2m in Stützen aufgelöst und bietet den BetreuerInnen damit Durchsicht auf den Sanitärbereich und die Garderobe. Die Wand ist aus der Eingangsachse gerückt und erweitert hierdurch die Schmutzschleuse um einen Malbereich, für den sie als Staffelei dient. Für die zweite Variante der Nutzung stellt sie die Bühne für das Puppentheater dar. Während die Kinder im Eingangsbereich die Puppen tanzen lassen, bietet der offene Bereich im Gruppenraum großzügigen Platz für die gespannten Zuschauer. Der Garderobenbereich ist annähernd quadratisch angelegt, um als Sitzkreis dienen zu können. Mit Hilfe von ein paar Stühlen kann er somit ohne viel Aufwand für ruhige Gruppenspiele genutzt werden.
Die großen öffenbaren Glasflächen zur Terrasse schürten Bedenken im Hinblick auf die Sauberkeit des Bodens, folglich musste eine Haupteingangsachse zwischen Gang und Außenbereich über eine Schmutzschleuse bestehen, der auch die Waschräume zugeordnet sind. Hieraus ergab sich die Frage, ob die Ausübung der Aufsichtspflicht trotz der räumlichen Distanz noch möglich sei. Durch das Auflösen des oberen Teils der Trennwand in Stützen konnten diese Bedenken zerstreut werden.
Auch die großzügig dimensionierten Atrium- und Gangflächen führten anfangs zu Bedenken bezüglich zu schnellen Laufens der Kinder. Bei einem Besuch des Kindergartens von DI Georg Reinberg und Gesprächen mit den dortigen Betreuerinnen wurde klar, dass die dort ähnlich konzipierte Situation positive Auswirkungen auf Bewegungsfreiheit und Aktionsradius der Kinder hatte. Dies deckt sich mit Erfahrungen von BetreuerInnen in Reggio-Emilia-Einrichtungen und solchen, die das Konzept der „Offenen Arbeit“ anwenden. Gemäß dem österreichischen Bildungsplan soll jede Gruppeneinheit möglichst einer familiären Wohneinheit entsprechen.
Küche
Die Küche hat auf Grund der 120 zuzubereitenden Mahlzeiten Großküchenstatus. In Zusammenarbeit mit der Köchin und deren Gehilfin wurden die notwendigen Geräte definiert und auf Grund der Abläufe deren Anordnung in der Küche organisiert. Da möglichst viele Komponenten täglich frisch eingekauft und gleich verarbeitet werden, um eine hohe Qualität der Nahrung zu gewährleisten, wurde der ursprünglich geplante Kühlraum zur Lagerfläche für Trockenprodukte (Nudeln, Reis, Linsen, usw.) umgewidmet. Direkt neben dem Eingang der Küche ist Platz für sechs Servierwägen. Hier werden fertige Gerichte und Geschirr vorbereitet, um dann jeweils in die Gruppen oder zu den Tischen gebracht zu werden. Nach dem Essen werden ebenfalls hier die Wägen mit schmutzigem Geschirr geparkt und dann in den direkt anschließenden Geschirrspüler eingeordnet.
Die Zulieferung wird großteils von der Köchin selbst übernommen. Über den öffenbaren Bereich im Atrium nach Norden kann der Einkauf leicht entladen und in die Küche gebracht werden. Größere Mengen können über den zusätzlichen Zugang in der nordöstlichen Ecke direkt in das Lager gebracht werden.


















